
|
Kamenice, plán přízemí tvrze z počátku druhé třetiny 17. stol. Uložen v Moravském zemském archivu v Brně.
Encyklopedie českých tvrzí 2., ARGO 2000 |
půdorys zámku

|
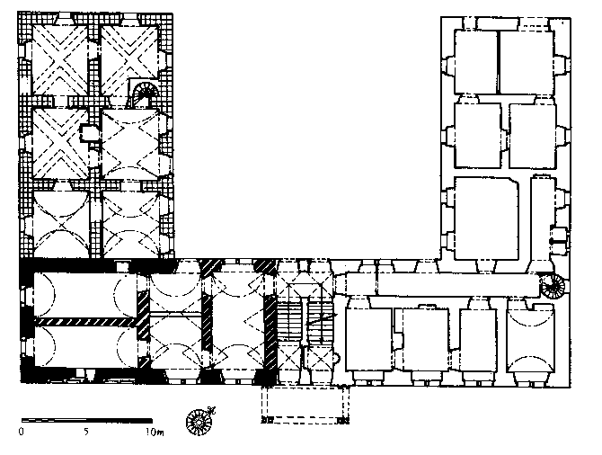
Kamenice, přízemí zámku. Doplněné zaměření SÚPPOP Praha z r. 1957.
Encyklopedie českých tvrzí 2., ARGO 2000 |